
Retail
ID 749742Lease
Sublease
1111-1113 West Olive Avenue
Merced, CA, 95348
Please contact us for price
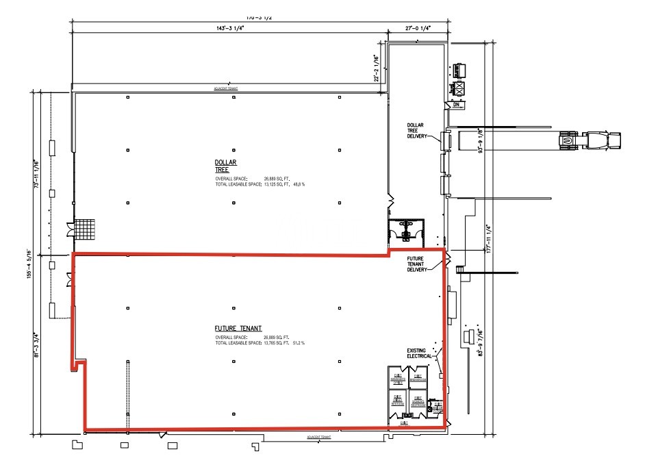
- Space Available for lease13,765 SF

Shauna Mattis
Managing Director
Broker details

Scott Burns
Senior Managing Director
Broker details
- Description
- Location
- Floor plan
- Brochures
- Brokers
- Make an inquiry for property
Sublease Description
Now Available for Sublease, Retail, located at 1111 West Olive Avenue.
Available square footage 13,765 SF.
Please contact us for further information.
Space details
Location
Brokers

Shauna Mattis
Managing Director
Broker details

Scott Burns
Senior Managing Director
Broker details