
Retail
ID 749714Lease
Sublease
2159-2167 Pacific Coast Highway
Lomita, CA, 90717
Please contact us for price
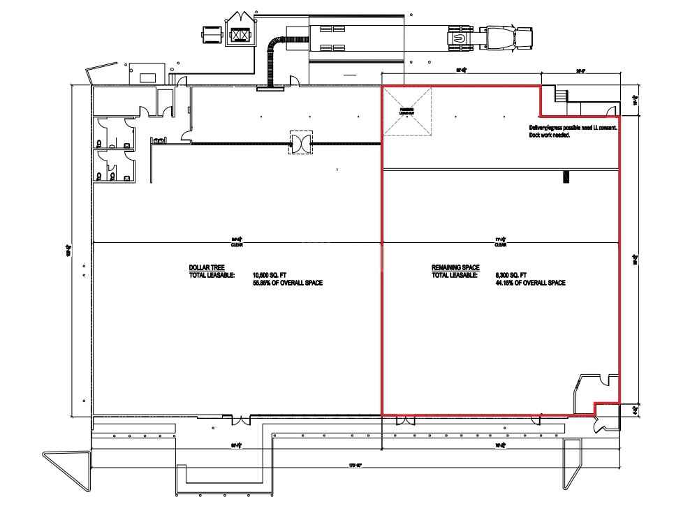
- Space Available for lease8,300 SF

Scott Burns
Senior Managing Director
Broker details

Shauna Mattis
Managing Director
Broker details
- Description
- Location
- Floor plan
- Brochures
- Brokers
- Make an inquiry for property
Sublease Description
Now Available for Sublease, Retail, located at 2159-2167 Pacific Coast Highway.
Available square footage 8,300 SF.
Please contact us for further information.
Space details
Location
Urban
Brokers

Scott Burns
Senior Managing Director
Broker details

Shauna Mattis
Managing Director
Broker details