
Retail
ID 749744Lease
Sublease
8375 W Thunderbird Rd
Peoria, AZ, 85381
Please contact us for price
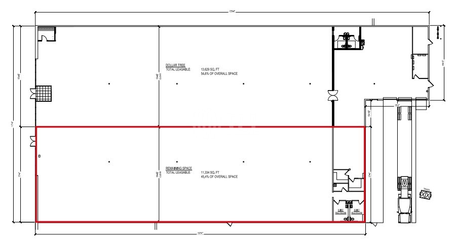
- Space Available for lease11,334 SF
- Description
- Location
- Floor plan
- Brochures
- Brokers
- Make an inquiry for property

Peoria, AZ, 85381
Please contact us for price