
Retail
ID 749752Lease
Sublease
Redhill Village
14511-14591 Red Hill Avenue
Tustin, CA, 92780
Please contact us for price
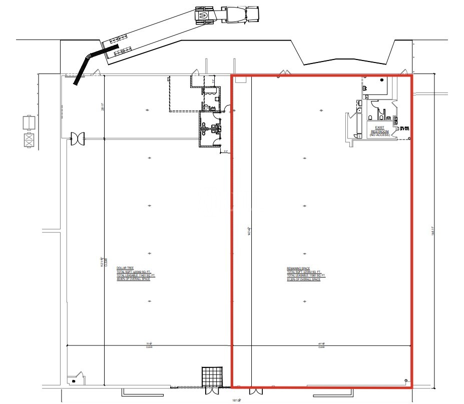
- Space Available for lease11,961 SF
- Description
- Location
- Floor plan
- Brochures
- Brokers
- Make an inquiry for property

14511-14591 Red Hill Avenue
Tustin, CA, 92780
Please contact us for price