2020 Robert-Bourassa Boulevard
2020 Robert-Bourassa Boulevard
Montreal, QC, H3A 2A5
Please contact us
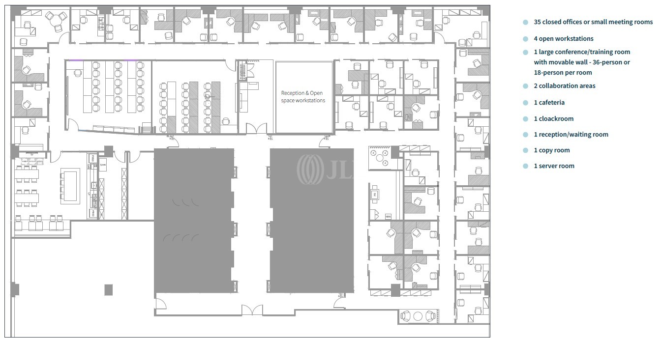
- Space available for rent10,195 ft²

Jake Sinclair
Associate Vice President
Agent details

Bernard Lawrence*
Vice-président exécutif, Représentation des locataires
Agent details
- Summary
- Building Information
- Location
- Floor plan
- Brochures
- Agents
- Make an inquiry for property
Description
This distinguished office building sits in the heart of Montréal’s business district on Robert-Bourassa Boulevard. Originally built in 1973 and fully renovated in 2015, it combines modern amenities with a prestigious downtown address.
The property offers exceptional connectivity with direct access to McGill metro and REM station and Montréal’s underground pedestrian network, providing weather-protected routes to shopping, dining, and major transportation hubs.
The building’s prime location near Place Ville-Marie and McGill University places tenants steps from premium hotels, restaurants, and business services.
Available Units
Location
Agents

Jake Sinclair
Associate Vice President
Agent details

Bernard Lawrence*
Vice-président exécutif, Représentation des locataires
Agent details







