469 King Street W
469 King Street W
Toronto, ON, M5V 1K4
Please contact us
- Space available for rent18,197 ft²

Matt Kornmuller
Senior Vice President
Agent details

Robert Sweeney
Executive Vice President, Tenant Representation
Agent details

Henry Stafferton
Associate Vice President, Brokerage
Agent details
- Summary
- Location
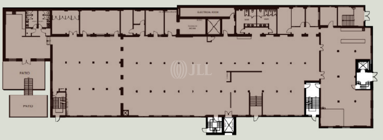
- Floor plan
- Brochures
- Agents
- Make an inquiry for property
Lease Description
King West has evolved dramatically over the last two decades. The vibrancy and attractiveness of the area has brought an influx of residential living, restaurants, retailers and office workers.
Today, there are more reasons to love not just the street, but the whole neighbourhood—not just King West, but King West Village.
King West Village provides residents, workers and visitors with the best Toronto has to offer; an intimate yet worldly village-like atmosphere to live, work, gather and enjoy.
PROPERTY HIGHLIGHTS
Premium brick-and-beam building located in the heart of Toronto’s King West neighbourhood. The building offers a vibrant and lively workplace with a thriving arts and culture scene, trendy shops, diverse dining options and excellent public transit. This centrally located, amenity-rich area is an ideal location to enhance organizational culture, productivity and engagement.
Available Units
Location
Agents

Matt Kornmuller
Senior Vice President
Agent details

Robert Sweeney
Executive Vice President, Tenant Representation
Agent details

Henry Stafferton
Associate Vice President, Brokerage
Agent details

Allie Morash
Associate, Tenant Representation
Agent details