Industrial
ID 753652Sale
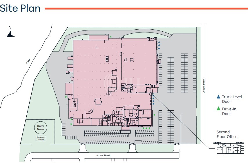
79 Arthur St
Mitchell, ON, N0K 1N0
$6,500,000
- Space available for sale197,512 ft²

Mitchell Blaine
Executive Vice President, Sales & Leasing
Agent details

Mallory Weldon
Vice President
Agent details

Chris Kotseff
Executive Vice President
Agent details
- Summary
- Location
- Floor plan
- Brochures
- Agents
- Make an inquiry for property
Sale Description
Now Available for Sale, ±197,512 SF Industrial Facility on 12.49 Acres, located at 79 Arthur St.
Please contact us for further information.
Location
Agents

Mitchell Blaine
Executive Vice President, Sales & Leasing
Agent details

Mallory Weldon
Vice President
Agent details

Chris Kotseff
Executive Vice President
Agent details

Alexandra Smith
Transaction Manager
Agent details