Industrial
ID 698992Lease
88 East Beaver Creek Road
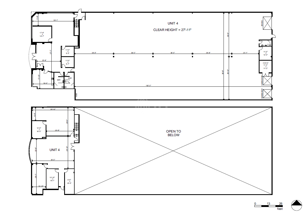
88 East Beaver Creek Road, Unit 4
Richmond Hill, ON, L4B 4A8
Please contact us
- Space available for rent21,361 ft²
- Summary
- Location
- Floor plan
- Brochures
- Agents
- Make an inquiry for property
Property Highlights
• Well maintained precast facility with exposure on East Beaver Creek Road
• Easy access to Highways 404 & 407
• High quality Landlord with dedicated professional property management.
• End unit with two level office area (3,088 SF on the ground floor and 3,321 on the second floor
• Excellent shipping area
• Newly installed LED lighting in warehouse
• Brand new roof replacement in 2021
• No recreational uses
Property Features:
Location: Highway7/Leslie Street
Size: 21,361 SF
Office Area:6,409 SF
Clear Height:27' 11"
Shipping:2 TL, 1 DI
Possession Date: 2/1/2026
Available Units
Location
Agent

Max Smirnis
Executive Vice President, Industrial
Agent details

