2020 Robert-Bourassa Boulevard
2020 Robert-Bourassa Boulevard
Montreal, QC, H3A 2A5
Veuillez nous contacter
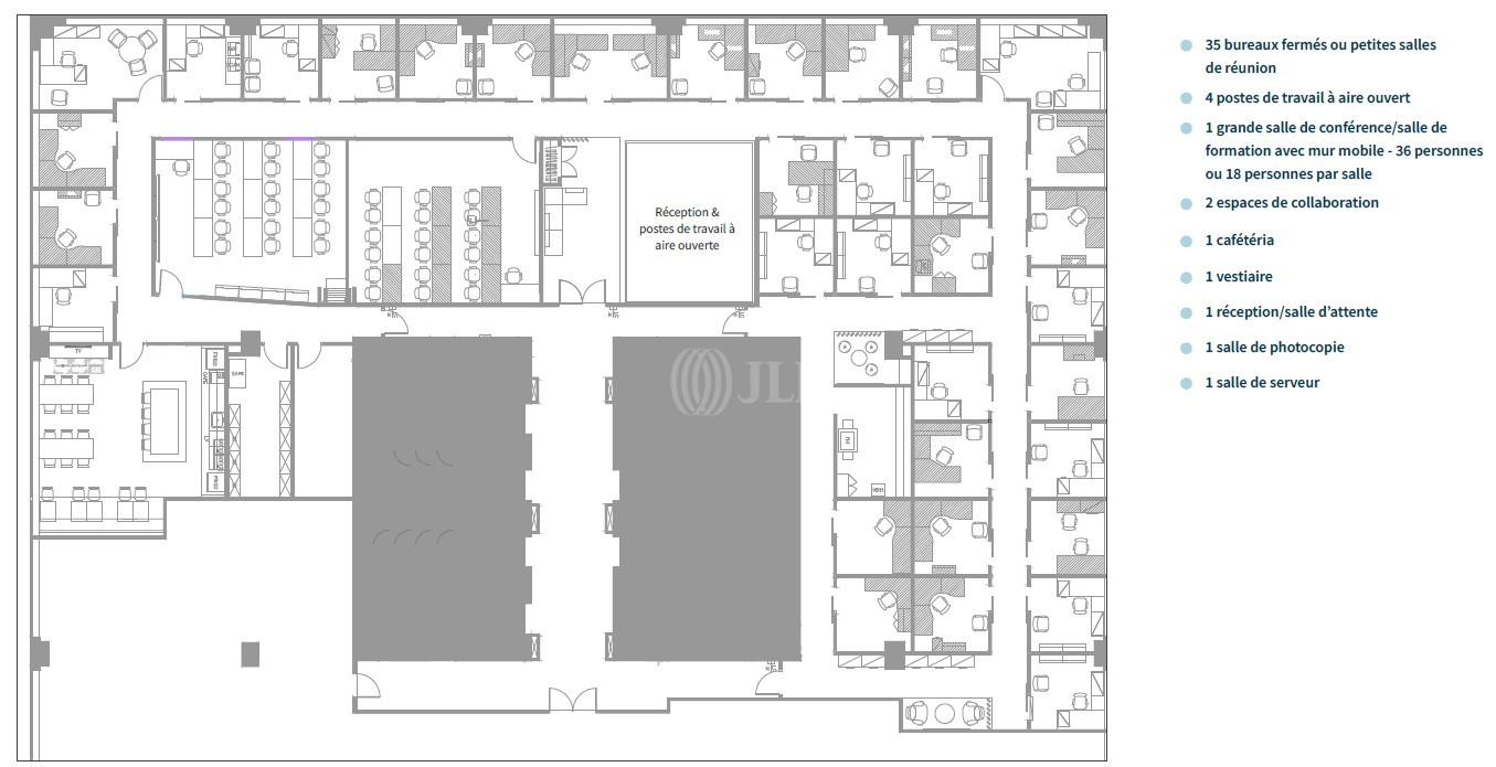
- Espace disponible à la location10 195 pi²

Jake Sinclair
Vice-président associé
Détails du courtier

Bernard Lawrence*
Vice-président exécutif, Représentation des locataires
Détails du courtier
- Sommaire
- Prestations & Services
- Emplacement
- Plan
- Brochures
- Courtiers
- Faire une demande sur une propriété
Sublease Description
Cet immeuble de bureaux distingué est situé au coeur du quartier des affaires de Montréal, sur le boulevard Robert-Bourassa. Construit à l’origine en 1973 et entièrement rénové en 2015, il allie des commodités modernes à une adresse prestigieuse du centre-ville.
La propriété offre une connectivité exceptionnelle avec un accès direct à la station de métro McGill et au REM, ainsi qu’au réseau piétonnier souterrain de Montréal, offrant des trajets protégés des intempéries vers les commerces, restaurants et principaux pôles de transport.
L’emplacement privilégié de l’immeuble, près de la Place Ville-Marie et de l’Université McGill, place les locataires à quelques pas d’hôtels haut de gamme, de restaurants et de services aux entreprises.
Détails de l'espace
Emplacement
Courtiers

Jake Sinclair
Vice-président associé
Détails du courtier

Bernard Lawrence*
Vice-président exécutif, Représentation des locataires
Détails du courtier







