2 Shaw Aly
Office
ID 540876
Lease

2 Shaw Aly

San Francisco, CA, 94105

Please contact us for price

  • Space Available for lease5,547 SF 
  • Description
  • Location
  • Floor plan
  • Brochures
  • Brokers
  • Make an inquiry for property

Lease Description

Now Available for Lease, Top Floor Furnished Space with Skylights, located at 2 Shaw Aly.

Available square footage 5,547 SF.

Please contact us for further information.

Space details

Location

CBD

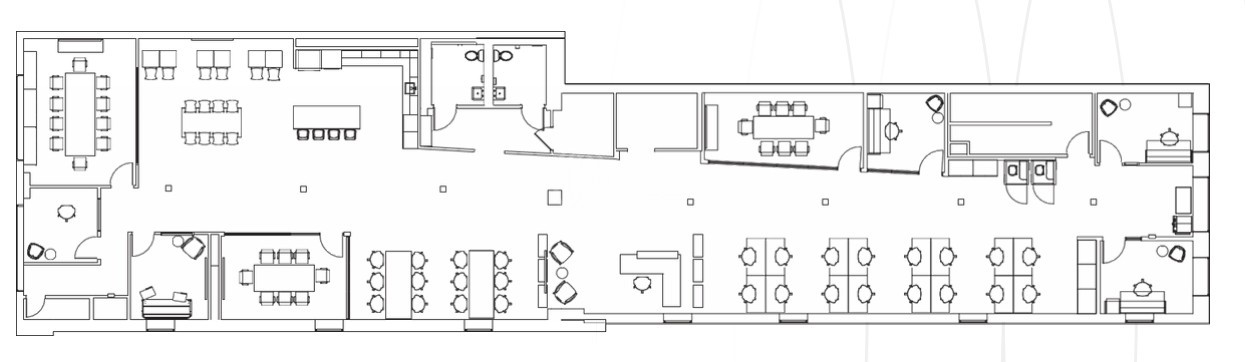
Floor plan

Brochure

Broker

Jean Ko

Jean Ko

Senior Vice President

Broker details