226-230 Powell St
Retail
ID 156620
Lease

226-230 Powell Street in Union Square

226-230 Powell St

San Francisco, CA, 94102

Please contact us for price

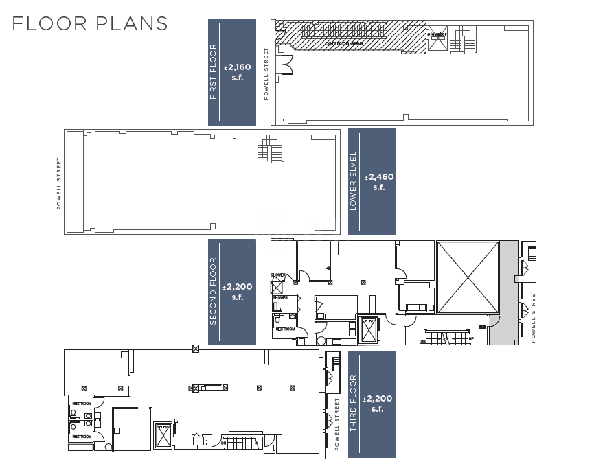
  • Space Available for lease2,160 - 2,460 SF 
  • Location
  • Floor plan
  • Brochures
  • Brokers
  • Make an inquiry for property

Space details

Location

Non-CBD

Floor plan

Brochure

Broker

Laura Tinetti

Laura Tinetti

Executive Vice President

Broker details