23 Broderick Rd
Industrial
ID 272399
Lease

23 Broderick Rd

23 Broderick Rd

Burlingame, CA, 94010

$2.15 per SF

  • Space Available for lease10,000 SF 
  • Location
  • Floor plan
  • Brochures
  • Brokers
  • Make an inquiry for property

Space details

Location

North County

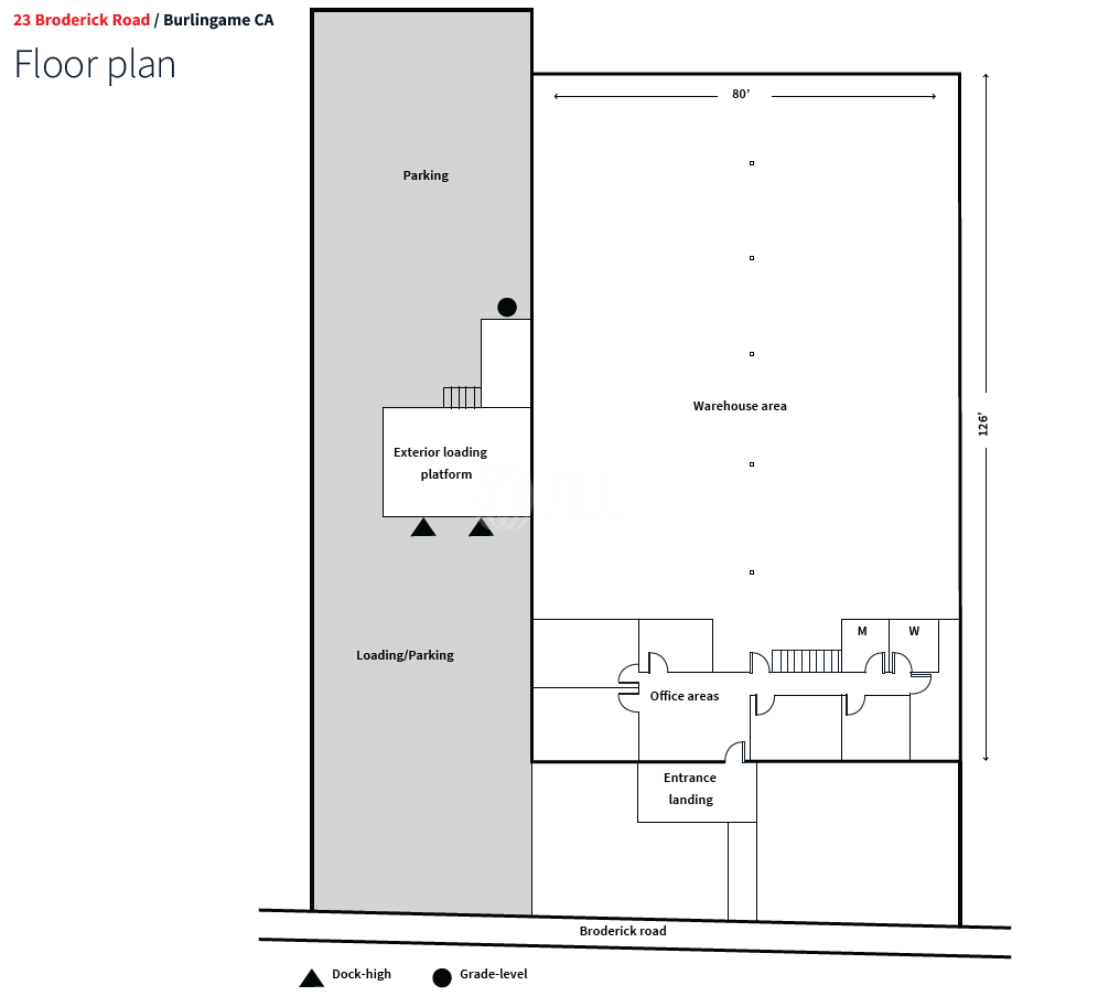
Floor plan

Brochure

Broker

Jason Cranston

Jason Cranston

Senior Managing Director

Broker details