
Industrial
ID 638586Lease
8603 W Roosevelt Street
8603 W Roosevelt
Tolleson, AZ, 85353
Please contact us for price
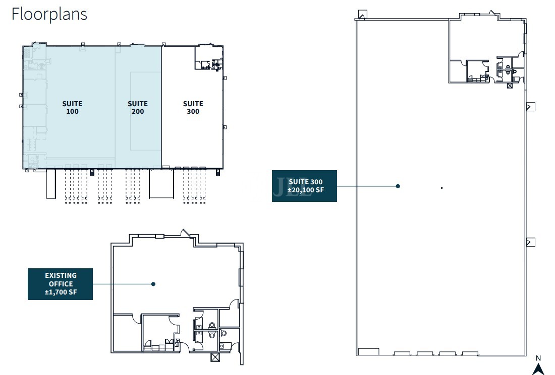
- Space Available for lease20,100 SF

Kelly Royle
Vice President
Broker details

Nicole Marshall
Associate
Broker details
- Description
- Highlights
- Location
- Floor plan
- Brochures
- Brokers
- Make an inquiry for property