1310 E Whitestone Blvd
1310 E Whitestone Blvd
Retail
ID 725995
Lease

Crosscreek Market

1310 E Whitestone Blvd

Cedar Park, TX, 78613

Please contact us for price

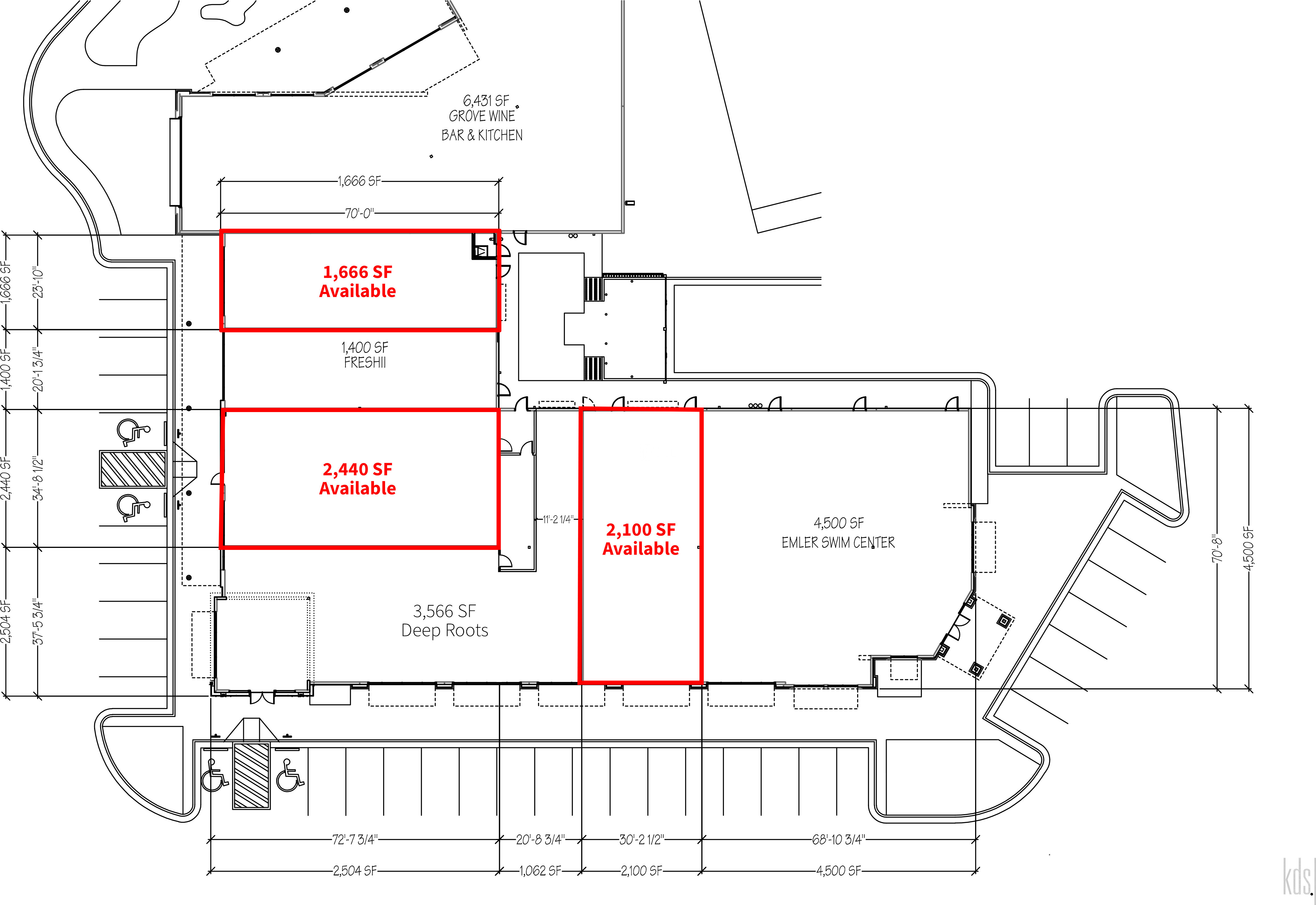
  • Space Available for lease1,666 - 4,000 SF 
  • Description
  • Location
  • Floor plans
  • Brochures
  • Brokers
  • Make an inquiry for property

Lease Description

Now Available for Lease, Retail, Crosscreek Market located a1310 E Whitestone Blvd.

Available square footage 1,666-4,000 SF.

Please contact us for further information.

Space details

Location

Suburbs

Floor plans

Brochure

Broker

Travis Robertson

Travis Robertson

Executive Vice President

Broker details