Office
ID 201264Lease
Greencourt Innovation Center
12358 Parklawn Dr
Rockville, MD, 20852
Please contact us for price
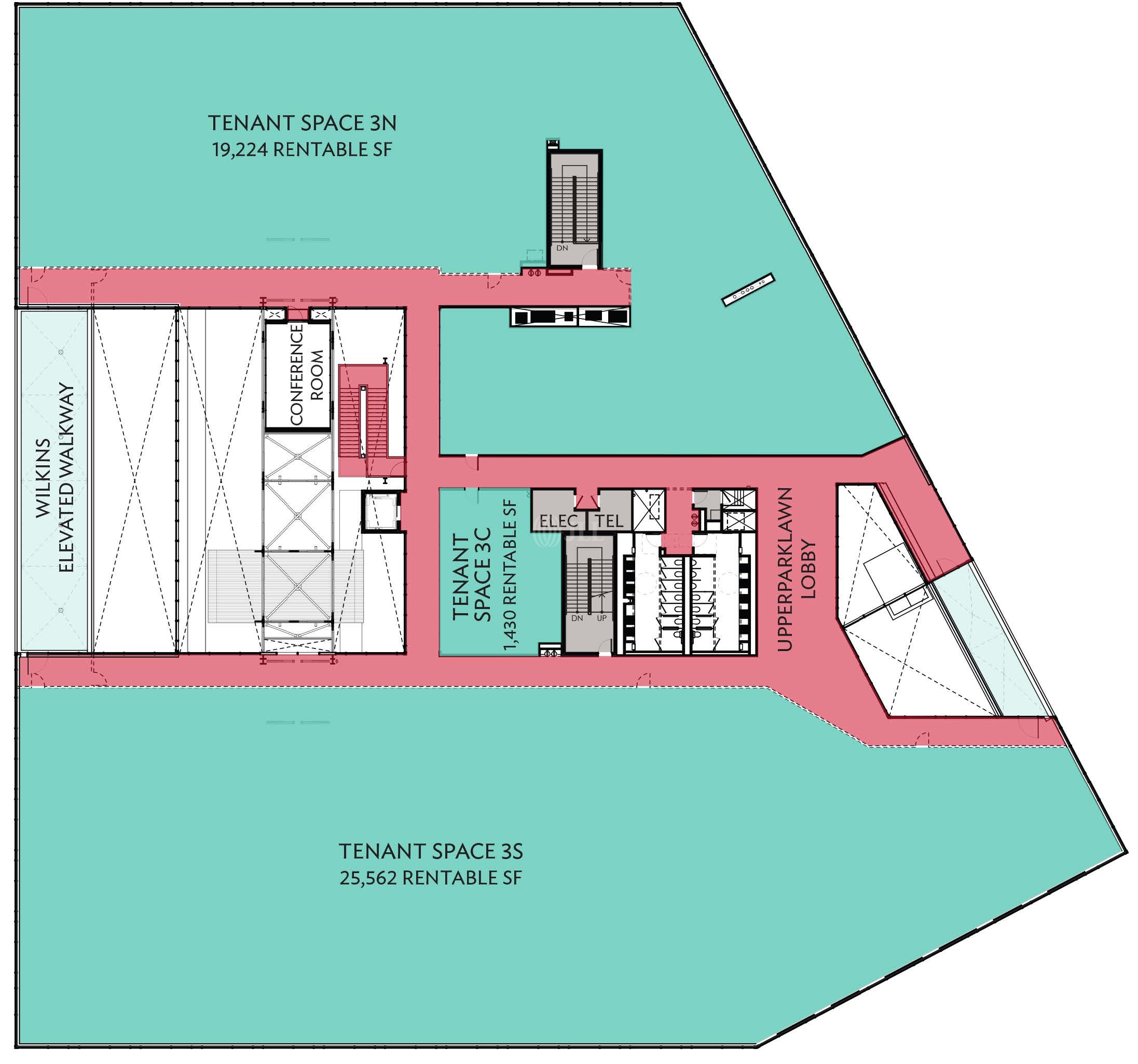
- Space Available for lease681 - 963 SF

Amanda Davis
Senior Managing Director, Brokerage
Broker details

Danny Sheridan
Managing Director
Broker details

Alden Stabb
Senior Vice President, Brokerage
Broker details
- Highlights
- Amenities
- Location
- Floor plans
- Brochures
- Brokers
- Make an inquiry for property