Industrial
ID 585090Lease
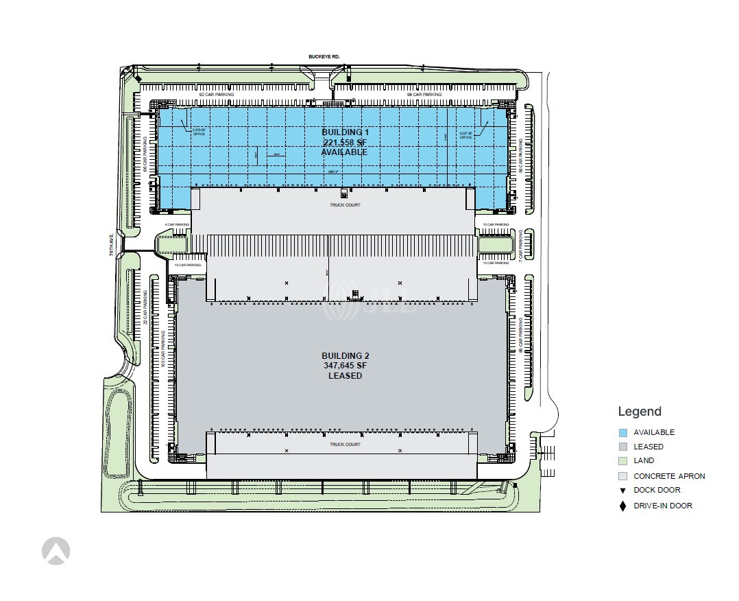
Prologis SW Industrial Ctr 1
7825 W Buckeye Rd
Phoenix, AZ, 85043
Please contact us for price
- Space Available for lease221,558 SF

Riley Gilbert
Vice Chairman
Broker details

Marc Hertzberg
Vice Chairman
Broker details

Kelly Royle
Vice President
Broker details
- Location
- Floor plan
- Brochures
- Brokers
- Make an inquiry for property

