
Industrial
ID 662844Lease
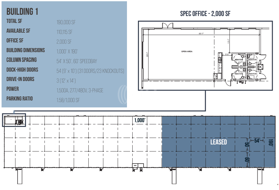
Sunlake Business Center & SR-54 - Building 1
18374 Pasco Business Center Way
Lutz, FL, 33558
Please contact us for price
- Space Available for lease110,115 - 190,000 SF

John Dunphy
Executive Managing Director
Broker details

Harrison Pithers
Associate, Industrial
Broker details

Peter Cecora
Senior Managing Director
Broker details
- Description
- Highlights
- Location
- Floor plan
- Brochures
- Brokers
- Make an inquiry for property
Lease Description
Now available for sale or lease, industrial Sunlake Business Center @ SR-54- Building 1 located at FL-54 & Sunlake Blvd Lutz, Florida 33558.
Available square footage 110,115 - 190,000 SF.
Please contact us for further information.
Space details
Location
Brokers

John Dunphy
Executive Managing Director
Broker details

Harrison Pithers
Associate, Industrial
Broker details

Peter Cecora
Senior Managing Director
Broker details