5193-5195 W Woodmill Dr
Office
ID 750921
Sale

Woodmill Corporate Center

5193-5195 W Woodmill Dr

Wilmington, DE, 19808

$750,000

  • Space Available for sale3,248 SF 
  • Description
  • Highlights
  • Location
  • Floor plan
  • Brochures
  • Brokers
  • Make an inquiry for property

Sale Description

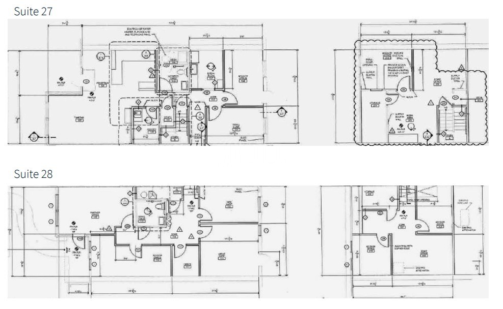
Now Available for Sale, Two Office Condo units #27 and #28, 1,624 SF each for a total of 3,248 SF on two floors, located at 5193-5195 W Woodmill Dr.

Please contact us for further information.

Location

Delaware

Floor plan

Brochure

Broker

Cindy Fleming

Cindy Fleming

Associate Vice President

Broker details